Suat Tuncay İnşaat
 
İletişim Hizmetlerimiz Projeler Hakkımızda

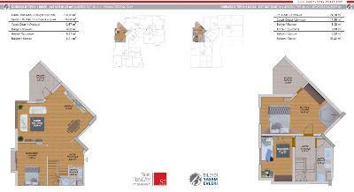
Bileydi Yaşam Evleri

Bileydi yaşam evleri projesi, Antalya da seçkin bir mekan olarak gelişme gösteren Konyaaltı Liman Mahallesinde yer almaktadır.Konyaaltı Plajlarına 900 mt Alışveriş Merkezlerine 6 km Şehir Merkezine 10 km Havaalanına 28 km Kemere 30 km Belek Golf Merkezine 50 km Saklıkent Kayak Merkezine 33 km
   

ONLINE KATALOG İÇİN TIKLAYINIZ

 

  • İNŞAAT
  •     İnşaatın statik hesaplamalarında DEPREM açısından güvenli ve yönetmenliğe uygun CFA FORE KAZIK ve RADYE TEMEL uygulanmıştır.

  •     Karkas yapı sisteminde C25 BETON kullanılmıştır.

  •     Döşemelerde B1 Sınıfı strafor (EPS) YTONG ASMOLEN

  •     Duvarlarda İZO TUĞLA kullanılmış, gerekli MANTOLAMA

  •     REHAU PVC doğrama konfor ısıcam

  •     REHAU monoblok panjur

  •     Silikon Cephe

  •     Ytong Çatı Sistemi (Üst Düzey Isı Yalıtımı İçin)



DIŞ MEKANLAR

  •     9179/06 Parsel

  •     6646 m2

  •     4 Blok

  •     154 Bağımsız Bölüm

  •     Zengin Peyzaj Çalışması

  •     2 Adet Kapıcı Dairesi

  •     Çocuk Oyun Alanı

  •     Genel Mekanlerda Wireless Olanağı

  •     Konseptin bir parçası olan bahçe ve terasda mimari projeye uygun olarak PEYZAJ

  •     330 M2 açık yüzme havuzu, çocuk havuzu, soyunma odaları,

  •     Duş / wc, güneşlenme terasları, fitness, kafeterya,

  •     Yürüme yolları ve yeşil alanlar mevcuttur.

  •     Site sakinlerinin faydalanabileceği kamelya ve barbeküler.

  •     Sauna ve Buhar Hamamı

  •     Araç ve yaya yollarının alt yapıları, kanalizasyon, direnaj sistemleri ve bahçe teras izolasyonları


İÇ MEKANLAR


  •     Şifreli, otomatik ve görüntülü bina giriş kapıları

  •     Bina içi sahanlık, ortak alan ve merdivenler 1. sınıf mermer ve ahşap kaplama

  •     Çelik daire giriş kapıları
       
  •     Doortek marka lake boyalı daire iç kapıları

  •     Oda içerisinde gömme dolap

  •     Vestiyer

  •     Duvarlar saten alçı üzeri su bazlı saten boya

  •     Asma tavanlar, gizli ışıklandırmalı, saten alçı üzeri plastik boya

  •     Dekoratif duvar kağıtları

  •     İTHAL laminant parke (Salon ve odalar)

  •     GRANİT SERAMİK 60x60 (Antre, koridor ve balkonlar)

  •     ÇANAKKALE seramik / SERRA (ıslak alanlar)

  •     Canakalle/Serra

  •     Gömme rezervuar (Banyo ve WC)

  •     Duş teknesi ve Duşakabin

  •     Banyo Mobilyası

  •     ARTEMA - ECA Batarya (Banyo ve lavabo)

  •     Сантехника марки Artema/Eca Batarya

  •     Lineadecor Mutfak (Akrilik / Cam Mutfak mobilyaları)

  •     Akrilik Mutfak tezgahı

  •     Ankastre Ocak, Fırın, Davlunbaz, Bulaşık makinesi, Buzdolabı, Çamaşır Makinesi ve Evye





ISITMA / SOĞUTMA

  •     Konutların ısıtılmasında doğalgaz Kombi ve Radyatör panelleri

  •     Gaz kaçağı sensörü, yangın sensörü

  •     KLİMA


SIHHİ TESİSAT

  •     Ortak su kullanımları için yer altı sondaj suyu

  •     Otomatik bahçe sulama sistemi

  •     Sıhhi tesisatta VESBO boru tercih edilmiştir.

  •     SU DEPOSU, HİDRAFOR ve SU ARITMA sistemi



ELEKTRİK

  • Daire içlerine, ortak alanlara, otopark ve çevre aydınlatmalarının
    tümünde elektrik kesintisi olduğunda otomatik olarak devreye
    girecek yeterli kapasitede JENERATÖR

  •     Ortak kullanım alanların tümünde fotoselli aydınlatmalar

  •     Tüm iç mekanlarda spotla aydınlatma

  •     Tüm mekanlarda kullanılan anahtar ve priz guruplarında VIKO, NILSON veya LEGRAND ürünleri

  •     Binaların tümünde topraklama


ASANSÖRLER

  •     Her blokta iki adet, VVVF FREKANS KONTROLLÜ, 8 kişilik özel tasarımlı
    dokunmatik butonlu, cam kapılı, TAM OTOMATİK ASANSÖRLER.



OTOPARK

  •     KAPALI OTOPARK

  •     Her daireden OTOPARKA ASANSÖRLE ULAŞIM imkanı
  •     Kapalı otoparkta HAVALANDIRMA

  •     Kapalı otoparkta YANGIN ALGILAMA ve SPRING YANGIN SÖNDÜRME Sistemi

  •     Kapalı otoparkta IŞIKLI ACİL YÖNLENDİRME
  •     Misafir araçları için AÇIK OTOPARK




GÜVENLİK


  •     Apartman Görevlisi

  •     24 saat GÜVENLİK Sistemi

  •     Site giriş ve çevre güvenlik KAMERA Sistemi

  •     Güvenlik ve site görevlileri ile DAHİLİ TELEFON Görüşme sistemi



İLETİŞİM

  •     Her dairede 2 harici telefon hattı alt yapısı

  •     Her dairede İNTERNET alt yapısı
  •     Her dairede Merkezi Uydu ,DIGITURK, Çanak ve
        Yerel anten alt yapısı


 

 



Ad & Soyad :
Email :
Telefon :
Mesajınız :